Дизайн фасадов

Дизайн фасадов в мастерской Martynov Architect - это работа с внешней оболочкой здания как с архитектурной системой, а не декоративной отделкой. Фасад формируется на основе объёма, пропорций, конструктивной логики и контекста участка. Все решения подчинены долговечности, технологичности и целостному восприятию здания.
Фасад - это не только внешний вид, но и функциональный слой: защита конструкций, работа с климатом, интеграция инженерных элементов. Ошибки на этом этапе приводят к проблемам в эксплуатации, поэтому ключевые решения фиксируются в проекте до начала работ.
Ключевые этапы разработки дизайна фасадов
- Проект выстраивается последовательно - от анализа до рабочей документации.
- Анализ объекта и исходных данных. Изучается существующий объём или проект здания, конструктивная схема, расположение на участке, ориентация по сторонам света и окружающая застройка.
- Формирование фасадной концепции. Определяется характер здания: пропорции, ритм проёмов, пластика фасада, принципы членения и акценты.
- Подбор материалов и решений. Выбираются фасадные системы с учётом климата, износостойкости, обслуживания и бюджета.
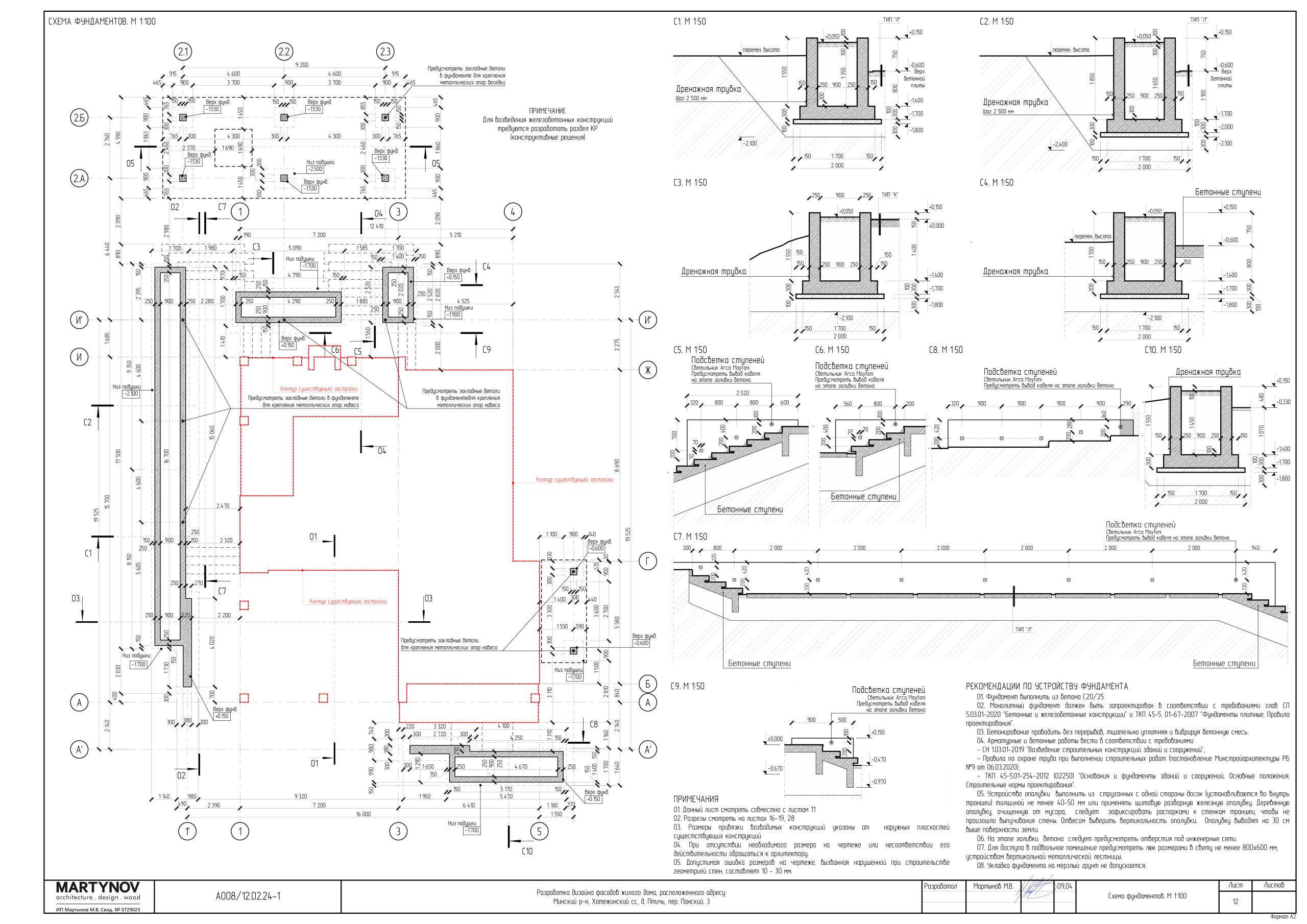
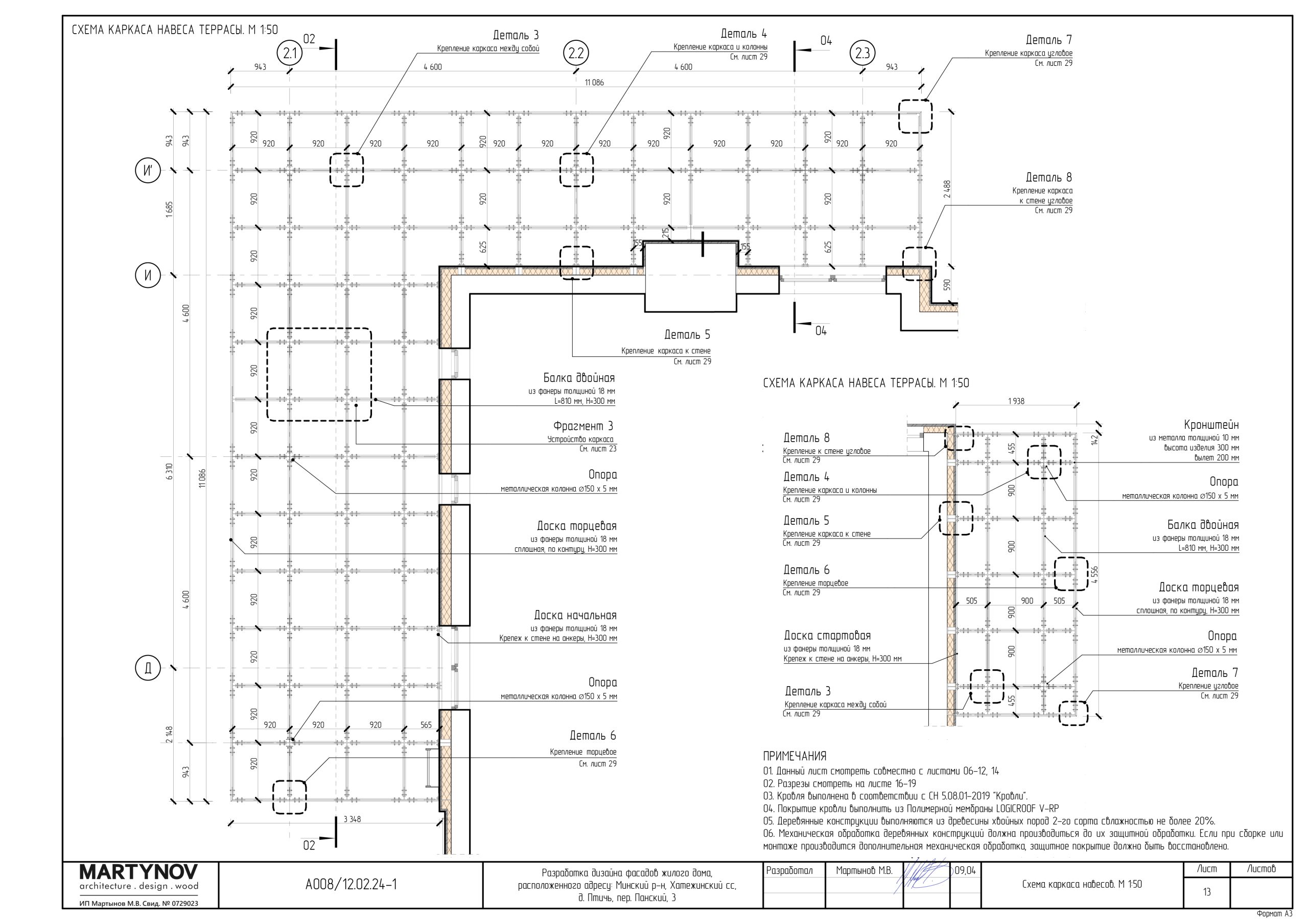
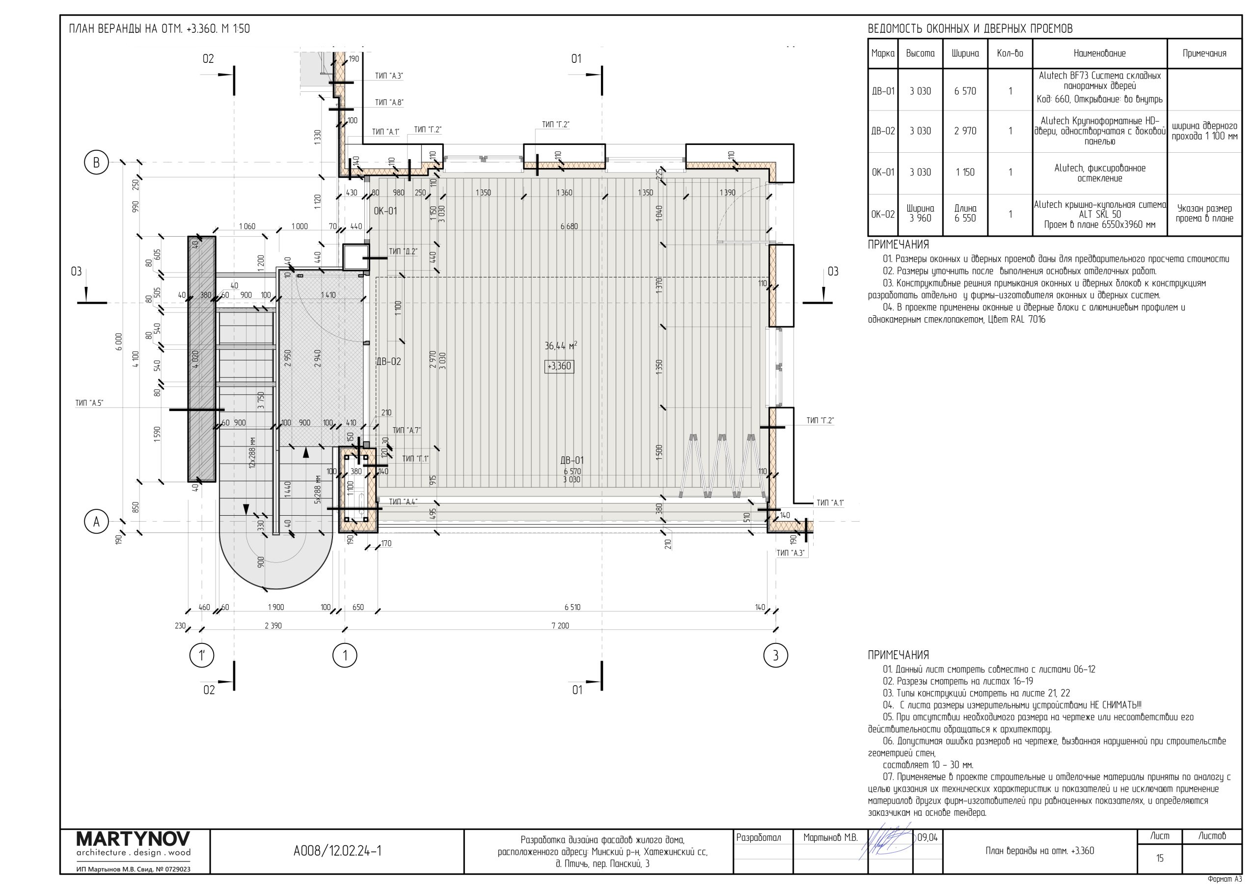
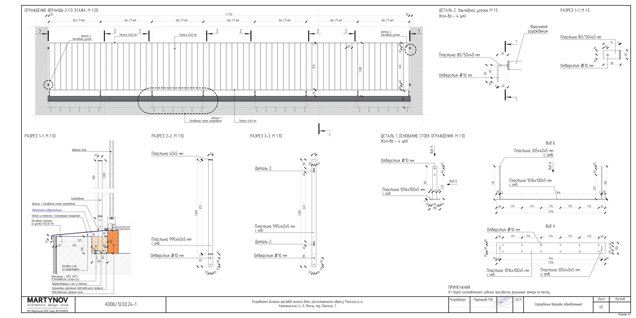
- Детализация и узлы. Прорабатываются примыкания, откосы, карнизы, стыки материалов и интеграция инженерных элементов (водостоки, вентиляция, освещение).
Что включает разработка дизайна фасадов
- Композиционное решение. Пропорции, ритм, баланс глухих и остеклённых поверхностей.
- Материалы и фактуры. Подбор с учётом долговечности, ремонтопригодности и визуальной устойчивости.
- Цветовое решение. Сдержанная палитра, работающая в контексте окружения и освещения.
- Интеграция инженерии. Скрытое или аккуратное включение технических элементов в архитектуру.
- Рабочая документация. Чертежи фасадов, разрезы, узлы, спецификации материалов.
Преимущества разработки фасадов в Martynov Architect:
- Связь фасада с архитектурой здания, а не отдельное декоративное решение.
- Учёт реальных условий эксплуатации: климат, загрязнение, обслуживание.
- Проработка узлов, исключающая типовые ошибки монтажа и преждевременный износ.
- Предсказуемый результат при реализации за счёт точной документации.
Дизайн фасада - это инструмент управления внешним обликом и сроком службы здания. Грамотно проработанный фасад сохраняет внешний вид и эксплуатационные характеристики на протяжении всего жизненного цикла объекта.
Закажите дизайн фасадов в мастерской Martynov Architect - и получите решение, которое корректно реализуется и не требует доработок в процессе эксплуатации.








